NFC的架構與規範詳解
發布時間:2012-02-15
中心議題:
- NFC的應用
- NFC架構
- NFC規範調變
- RF測試kit及測試程序
近年來由於手機的功能與普及度快速的成長,使早期的電子錢包有了推廣的機會點。NFC的演進取自於RFID的特定頻段,由於手機的市場應用使的NFC可在較快的時間點取得標準接口與平台,本文將針對NFC的架構與規範做討論。
NFC應用
電子付費係統中,目前應用於手機係統上最完整的解決方案是以NFC(nearfieldcommunication)為主,市場上也已經有相關產品流通著,如NOKIA3220、SamsungSGH-X700、VISAWAVE及台北捷運優遊卡等,皆是兼容於NFC係統。除了個人識別與電子付費係統外,NFC也在數據傳輸與交換上有了一些吸引人的功能,例如:電子海報的數據下載(包括入場卷、會展信息)。此外,NFC還可以作為藍牙設備配對及輸入密碼的簡化功能,若是使用者具有負載NFC的藍牙設備,即可將NFC分別靠近兩組具有NFC的藍牙設備,如此即可不需要透過藍牙搜尋及輸入密碼的配對過程即可快速連結。目前韓國、中國及歐美已經在電信業者、芯片商與手機製造商的合作下於公交付費係統中進行多次的驗證,預期NFC將有快速的成長。
NFC架構
NFC的操作頻率為13.56MHz,而操作距離約為10cm之內;而NFC的規範製定取至於RFID13.56MHz的頻段,早期運用此頻段包括PhilipsMiFARE(ISO1443A)、ISO1443B、ISO15693、ISO18000-3及SonyFelica。由於非接觸卡應用於個人數據識別或電子付費係統中強調於安全機製,而近乎於貼近卡片閱讀器係統的近場通信及是將13.56MHz中短距係統的部分加以整合,所以最後市場上所見的即為PhilipsMiFARE(ISO1443A)及SonyFelica,早期這兩家係統各自發展互不兼容,直到近年才將兩種規格合並並製定了NFC規範ECMA340/ISO18092(NFCIP1,NFCInterfaceandprotocol1)。此規範相容於現有PhilipsMiFARE(ISO1443A)及SonyFelica。

NFC工作頻率為13.56MHz、ASK調變,傳輸速率可分為106kbps/212kbps/424kbps三種,通信模式可分為主動模式與被動模式,主動模式是指發起設備(initiator)與目標設備(target)皆可自身電源供應產生RFfield,而被動模式下則是發起設備自身供應電源產生RFfield;而目標設備則利用全波整流線路將發起端的RFfield之能量轉換為DC來供應自己的電源。值得一提的是,在被動模式下為了要滿足省電的要求所以采用了負載調變(Loadmodulation)的方式,此調變方式可以達到省電的效果。
在使用上因為NFC的使用通常會遇到使用尖峰時期,會了避免不同的發起端或目標端同時溝通造成數據鏈路錯誤,所以NFC采用了一種機製listenbeforetalk。此機製會讓當發起端設備要發出詢問信號前,先偵測外界磁場強度來判斷是否有其它的設備正在溝通中,這種機製的實現稱為RFCollisionAvoidance(RFCA),其動作行為是在每次發起端發出詢問信號時會偵測外界磁場,當磁場強度超過門坎強度時(Hthreshold=0.1875A/m)則會停止詢問,直至外界強度降至門坎值以下。若是低於臨界值才會開始發出詢問指令,偵測的時間為TIDT+nTRFW,n為0~3的機率取樣:TRFW=512/fc(RFwaitingtime),TIDT>4096/fc(initialdelaytime)。當發起設備在TIDT+nTRFW內沒有偵測到超過門坎強度的磁場,則會先發射TIRFG的未調變RFfield之後再發出詢問信號,其中TIRFG必須大於5ms。

[page]
NFC規範調變
在此將針對NFCRFinterface做敘述,首先要先介紹EMCA340與EMCA356兩種標準,EMCA340中敘述NFC相關協議,這裏先引入數據封標作討論,NFC數據分包分為兩種類型,一為106kpbs、一為212/424kbps。


由於NFC106kbps為100%ASK調變,所以對整個High/Low信號的封包結構都有相當詳細的定義。其中幾個參數包括從100%下降到5%Am時間(t1)、5%Am持續時間(t2)、Am由5%上升至60%時間(t4)即overshoot的範圍。而212/424kbps則是8%~30%的調變率。
[page]
RF測試kit
1.Calibration coil:coil的功能在於驗證測試過程中,待測物所發射出的信號是否為正確的強度與調變。此Coil為一簡單的天線架構,當然EMCA也詳細的規定了所有的尺寸,由此coil所測出的值為0.32V(RMS)=1A/m(磁場強度)。

2.Field Generating Antenna:kit用於磁場的發射,圖中還包含了一組天線匹配線路。

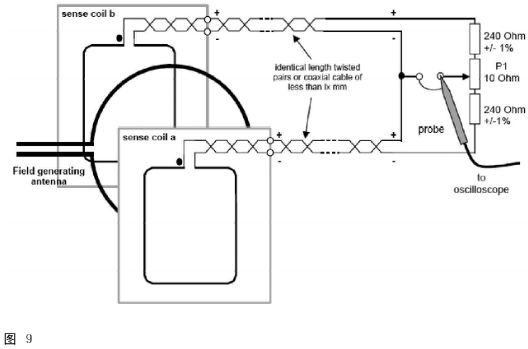
3.Sense coil:sense coil用於量測待測物的磁場強度與調變。

[page]
4.Reference device:圖7為兩種測試標準線路和一組天線coil,此referencedevice用於測試DUT的標準件。其中又包含了兩組測試電路,圖7-2為調變測試電路,圖7-3為電源測試電路。



RF測試程序
1.發起設備Power測試:此測項在測試由發起設備所供給的磁場強度是否供給目標物足夠的工作電源。將信號由generatingantenna調整發射,於右端的calibrationcoil量測到的強度為Hmax(7.5A/m),此時再將referencedevice配合power測試線路調整C2使線路共振點位於19MHz(此部份在規範中並無詳述為何調整至19MHz,在此推論若19MHz可達到3V輸出則當目標物為13.56MHz時其電壓一定會超高3V,此因該為取其下限值),放置於DUT位置,調整線路R2使的由C3所得到之電壓值為3V。此時Referencedevice已經完成,之後再將此卡用來量測發起設備,將此卡放至於發起設備所標注之超作範圍,在此超作範圍內任意位置所量測到的電壓值(C3)皆不可超過3V。至於Hmin測試則與max大致相同,不同處為將referencedevice共振頻率調至13.56MHz及所量測知電壓值皆須超過3V。

[page]
2.目標物的loadmodulation測試:
(1)被動模式
●106kbps:此測試為驗證目標物可正確調變出波形,先將calibrationcoil放置於下側外緣,確定generatingantenna所發射之波形與強度正確無誤,此時再將待測目標物放置於上側外緣,編輯一個ECMA340所定義之SENS_REQ波型由generatingantenna發射並在待測目標物會回送一個SENS_RES信號,如此即可透過二個sensecoil量測到信號,此量測架構因考量回傳之負載調變信號微弱,所以利用兩個sensecoil之間電壓差做計算,由於兼容係問題,所以在106kbps延續MiFARE使用副載波(subcarrier)的調變作被動目標物的回傳信號,所以量測點應於fc+fs與fc-fs(fc=13.56MHz,fs=fc/16)。

●212/424kbps:高速的調變信號量測方式則與106kbps十分相似,隻是將量測擷取位置改為fc,因為此兩種傳輸速度下並無使用副載波調變
(2)主動模式
主動模式的測試與被動模式上並無太大的差異,由於是主動模式所以加測了目標物的RFfield發射的時間,指令下達的時間……等。
3.發起設備的loadmodulation測試:此測試在於驗證發起設備的調變機製,可分為主動模式發射與被動模式接收兩種。
(1)主動模式發射:將calibrationcoil放置於發起設備所定義的任意位置,而所量測的波型皆需符合ECMA340所定的規範。
(2)被動模式接收:此為測試發起設備可以正確的接收被動目標物所回傳的信號。利用圖7-2的loadmodulation測試線路所做成的referencedevice,先將對應C3電壓與距離的關係以圖8的架構校正好,之後即可將此卡與發起設備的待測物做量測,測試由referencedevice所發出的調變信號於待測物端的接收情況。在此隻能對部分的測試項目做討論而詳細的測試請參考ECMA。
NFC係統與芯片開發
目前市場上所能見到的NFC最為積極推動的包括了Philips、NOKIA、Sony與Samsung,而這幾家廠商皆有產品於市場上,包括PhilipsPN511/PN531、NOKIA3220,RFMD也預計於RF4100與RF4113兩個具有NFC功能的單芯片,RF4100為藍牙與NFC整合的係統芯片,具有高整合度的手機應用界麵,而RF4113則為NFC係統芯片。RF4100尺寸為5mm×5mm的BGA與3.7mm×3.7mmWLCSP。預期NFC將會為手機應用層麵帶入一個新紀元。
- 噪聲中提取真值!瑞盟科技推出MSA2240電流檢測芯片賦能多元高端測量場景
- 10MHz高頻運行!氮矽科技發布集成驅動GaN芯片,助力電源能效再攀新高
- 失真度僅0.002%!力芯微推出超低內阻、超低失真4PST模擬開關
- 一“芯”雙電!聖邦微電子發布雙輸出電源芯片,簡化AFE與音頻設計
- 一機適配萬端:金升陽推出1200W可編程電源,賦能高端裝備製造
- 三星上演罕見對峙:工會集會討薪,股東隔街抗議
- 摩爾線程實現DeepSeek-V4“Day-0”支持,國產GPU適配再提速
- 築牢安全防線:智能駕駛邁向規模化應用的關鍵挑戰與破局之道
- GPT-Image 2:99%文字準確率,AI生圖告別“鬼畫符”
- 機器人馬拉鬆的勝負手:藏在主板角落裏的“時鍾戰爭”
- 車規與基於V2X的車輛協同主動避撞技術展望
- 數字隔離助力新能源汽車安全隔離的新挑戰
- 汽車模塊拋負載的解決方案
- 車用連接器的安全創新應用
- Melexis Actuators Business Unit
- Position / Current Sensors - Triaxis Hall

